YB33 Rail Clip

Product Overview

YB33 rail clip is a precision-engineered component designed for rail fastening applications. It plays a crucial role in ensuring the stability and proper alignment of rails, contributing to the safe and efficient operation of rail systems. Whether used in industrial rail tracks, transit systems, or other rail – related infrastructure, this rail clip provides reliable clamping force and structural integrity.

Structural Design

Cross – Sectional View

The cross – sectional view of the YB33 rail clip showcases its unique design. Key dimensions include:
  • The two symmetrically placed clamping sections, each with a width – related dimension of 72 (as marked in the cross – sectional view). These sections are responsible for securely gripping the rail, ensuring it remains in position under various loads.
  • The overall height – related dimension (such as the 8 – unit dimension shown), which contributes to the vertical stability and load – bearing capacity of the rail – clip assembly. The presence of components like the bolt and the base structure (indicated by parts 1 and 2 in the cross – sectional view) shows a well – thought – out design for force distribution.

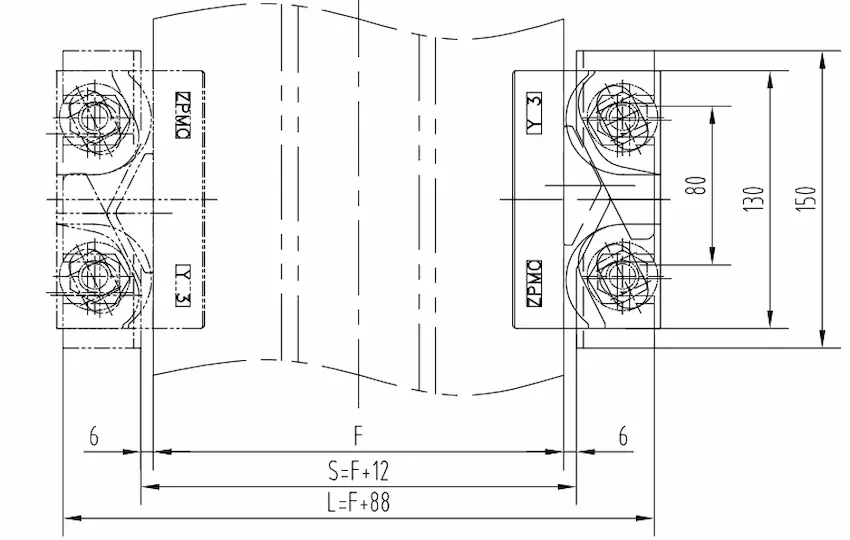
Plan View

From the plan view, we can observe:
  • The layout of the clip’s body, with dimensions like 80, 130, 150, etc. The length – related dimensions such as S = F + 12 and L = F + 88 (where F is likely a base dimension related to the rail or installation space) ensure proper compatible with the rail and the surrounding infrastructure.
  • The arrangement of internal structures, which might be related to bolt holes or force – transmission paths. This design ensures that the clamping force is evenly distributed across the rail, reducing the risk of rail damage or misalignment.

Installation and Alignment

  • During installation, precise alignment is required. The dimensions provided in the drawings (such as the 38 – unit dimension in the cross – sectional view and the various length dimensions in the plan view) must be strictly followed to ensure proper clamping of the rail. Any deviation from these dimensions could lead to insufficient clamping force, rail movement, or even safety hazards.
  • The bolt (part of the assembly as seen in the cross – sectional view) should be installed with the correct torque. Although the exact torque value is not provided in the given information, it is essential to achieve the designed clamping force. This ensures that the rail remains securely fastened under all operating conditions.

Application Scenarios

The YB33 rail clip is suitable for a wide range of rail applications:
  • Industrial Rail Systems: In factories, warehouses, and industrial facilities with internal rail tracks for material handling. It can securely fasten rails used for cranes, transfer cars, and other industrial equipment, ensuring smooth and safe operation.
  • Transit Railways: For light rail transit, subway systems, or tramways. The reliable clamping force of the YB33 rail clip helps maintain rail alignment, which is crucial for passenger safety and the efficient operation of transit vehicles.
  • Specialty Rail Installations: Such as in mining operations (for mine rail tracks) or in port facilities (for rail – mounted container handling equipment). In these harsh environments, the YB33 rail clip’s durability and load – bearing capacity can meet the demanding requirements.

For product pricing, customization, or any other inquiries:

Welcome to fill the Enquiry box or e-mail us!

 

info@gldiamond.com

滚动至顶部