55G3 Grooved rail

Product Overview

55G3 (41GP13) — Grooved tram rail balances a slim embedded railhead with a robust underframe to provide stability in both ground track and switch areas and tight-radius sections.
 

Key Features

Technical Specifications

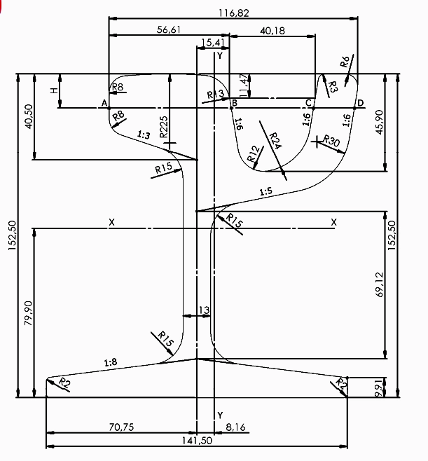
Rail Height: 152.5 mm

Base Width: 141.5mm 

Head Width: 57.03mm 

Web Thickness: 13mm

Weight: 55.27 kg/m

Standards: EN 14811

Length: Usually 18 m. Can be customized according to customer.

MOQ: 2000t

 

Material Properties

grooved rail Material Grade
55G3 grooved rail for sale
55G3 tram rail

Key Benefits & Design Intent

 
Embedded-friendly head geometry: allows paving level track while delivering a reliable running surface for tram wheel contact.
 
Versatile for turnouts and tight radii: profile shape is commonly used at junctions and in short-radius curves where grooved rails are required.

Typical Applications

On-street tramway tracks where the rail top must be flush with pavement.

Junctions and turnouts in urban environments.

Tight-radius sections and gutters where the grooved head keeps the running surface continuous with the roadway.

Welding, installation & maintenance notes

Welding: compatible with standard field repair methods (aluminothermic/thermite welding) and with specialist surfacing techniques for high-wear heads. Use qualified procedures that account for the grooved geometry.

Fastening & bedding: embedded rails require careful coordination of groove fillers, drainage and bedding material to avoid water trapping and to limit differential settlement.

Inspection & reprofiling: periodic grinding or surfacing extends life; choice of steel grade strongly affects reprofiling frequency.

Explore our full range of steel rails solutions and request a quote today. Partner with us for reliable, high-performance rails that drive efficiency in your operations.

Ordering guidance 

When requesting quotes include:

  1. Profile name (55G3 / 41GP13) and applicable standard (EN 14811).

  2. Quantity (linear metres or tonnes).

  3. Steel grade / delivery condition (standard, LCV, head-hardened, etc.).

  4. Tolerance group (G or R if relevant to verticality/straightness).

  5. Preferred rail length and any special packaging or surface protection requests.

滚动至顶部